EMILIE NIVER Négociatrice
Télécharger la fiche
Exclusivité

Villa 5 pièce(s) 4 chambre(s) 91 m²

Pertuis (84120)
390 000 € Référence 368

A propos de ce bien

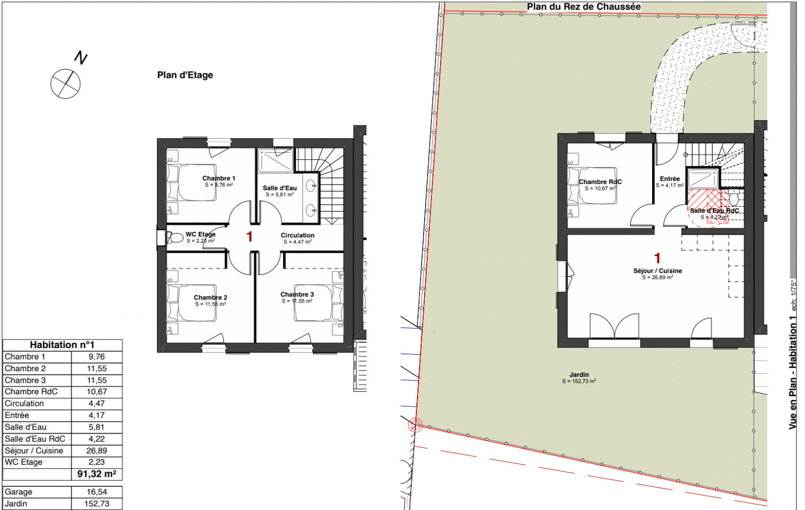
Votre agence Aix Puyricard Immobilier , vous propose, en EXCLUSIVITE à PERTUIS, au calme, cette Villa neuve T5, exposée Sud, mitoyenne de 91 m2 avec son garage, sur une parcelle totale de 145 m2 avec jardin piscinable. Elle se compose en rez-de-chaussée d'une pièce de vie avec cuisine ouverte, une chambre, salle d'eau avec WC. A l'étage, vous trouverez 3 chambres avec aménagement placard, une salle de bains et un WC indépendant. Elle est livrée avec de belles prestations: menuiseries double-vitrage alu et PVC, volets roulants électriques, climatisation réversible gainable, sèches-serviettes dans les salles de bains, WC suspendus, livrée hors cuisine. Frais de Notaire réduits Commerces et bus à pieds Prix hors honoraires 370 000 €

Caractéristiques de ce bien

  • Surface 91 m²
  • terrain 145,25 m²
  • 4 chambre(s)
  • 1 salle(s) de bain
  • 1 salle(s) d'eau
  • construit en 2025
  • Chauffage individuel : air pulsé (climatisation)
  • 1 parking(s)
  • exposition Sud
  • 1 côté(s) mitoyen(s)
  • 1er étage
  • 1 étage(s)

Diagnostics énergétiques

DPE
GES
DPE ANCIENNE VERSION

Informations financières

Prix de vente 390 000 € Les honoraires d'agence seront intégralement à la charge du vendeur

Autour du bien

  • Commerces et santé
  • Loisirs
  • Ecoles
  • Transports
  • Pratique

Calcul des mensualités

* Champs obligatoires